Free account required
12
Free account required
$999,000 List $999,000 Terminated
Terminated 527 days ago
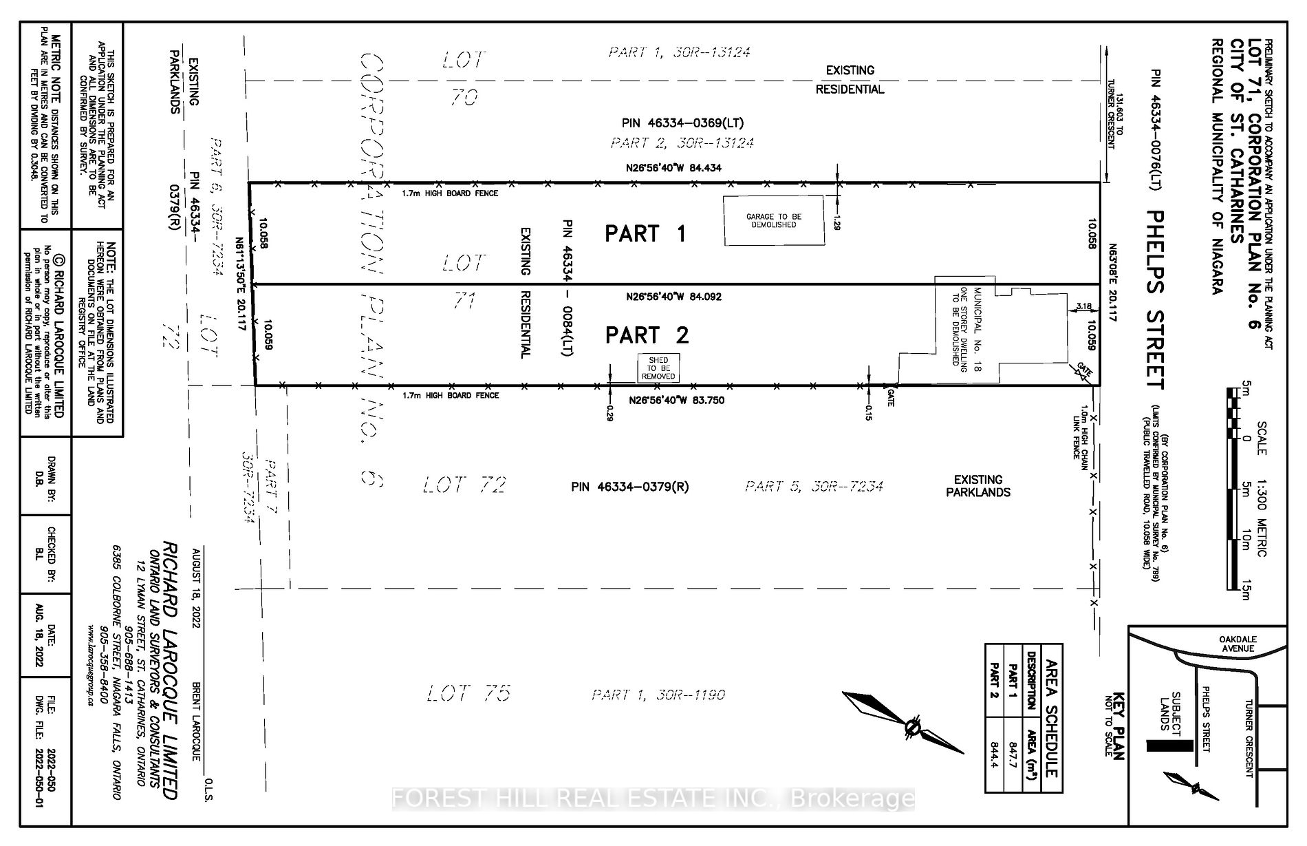
18 Phelps St
· 3
· 1
· 1
· -
Listing History
Buy/Sell/Terminated/Expired listing history for 18 Phelps St
Key Facts
Key facts for 18 Phelps St
Property Type
House, Bungalow
Parking
Detached 1 garage, 6 parking
MLS #
X8342110
Size
-
Basement
Unfinished
Listed on
2024-05-15
Lot size
66 x 277.00
Tax
$3,301.61 /yr
Days on Market
529
Approximate Age
-
Maintenance Fee
-
Description
Renovate Existing House Or Redevelop! Calling All Builders & Investors To Take Advantage Of This Rare Opportunity - Unique and Innovative City Approved Four Plex. **PERMITS AND PLANS INCLUDED** Site Plans Are Ready For You To Submit For Building Permit. Situated On A Quiet Street, Huge 66 x 297 ft. ...Lot Fronts Onto Clifford's Creek Park. 2 Bedroom Designs Are 1,592 Sq.Ft on One Floor And Include Another 1,697 Sq.Ft Of Unfinished Basement Space. The 4 Bedroom Units Are 2,677 Sq.Ft On Both Floors. One Car Parking Included With Each Unit - Additional Parking Available For Residents And Visitors. Walk To Public Transit and Conveniently Located To All Amenities. **** Extras **** Interested Buyers Given Opportunity To Give Their Input For The Developed Site Plan Before Application Is Submitted. Future Proposal As Per City, A New Street Will Connect Phelps Street To Abbot Street (See City For More Details).
Similar Properties (No results)
Room Types
2nd Br
-
Dimensions - feet
0 sqft
3rd Br
-
Dimensions - feet
0 sqft
Dining
-
Dimensions - feet
0 sqft
Courtesy of: FOREST HILL REAL ESTATE INC.